kerstin bergendal


/ Four Gardens for Greville Dementia Care Home
In 2016, on behalf of Bristol City Council, Willis Newson Art Agency in Bristol (UK) commissioned me to collaborate with architects Penoyre & Prasad and Steve Frazer of Landscape Architects Enzygo, on the development of a landscape design for a new 69 bed dementia care home, produced by Ashley House and Brunelcare.
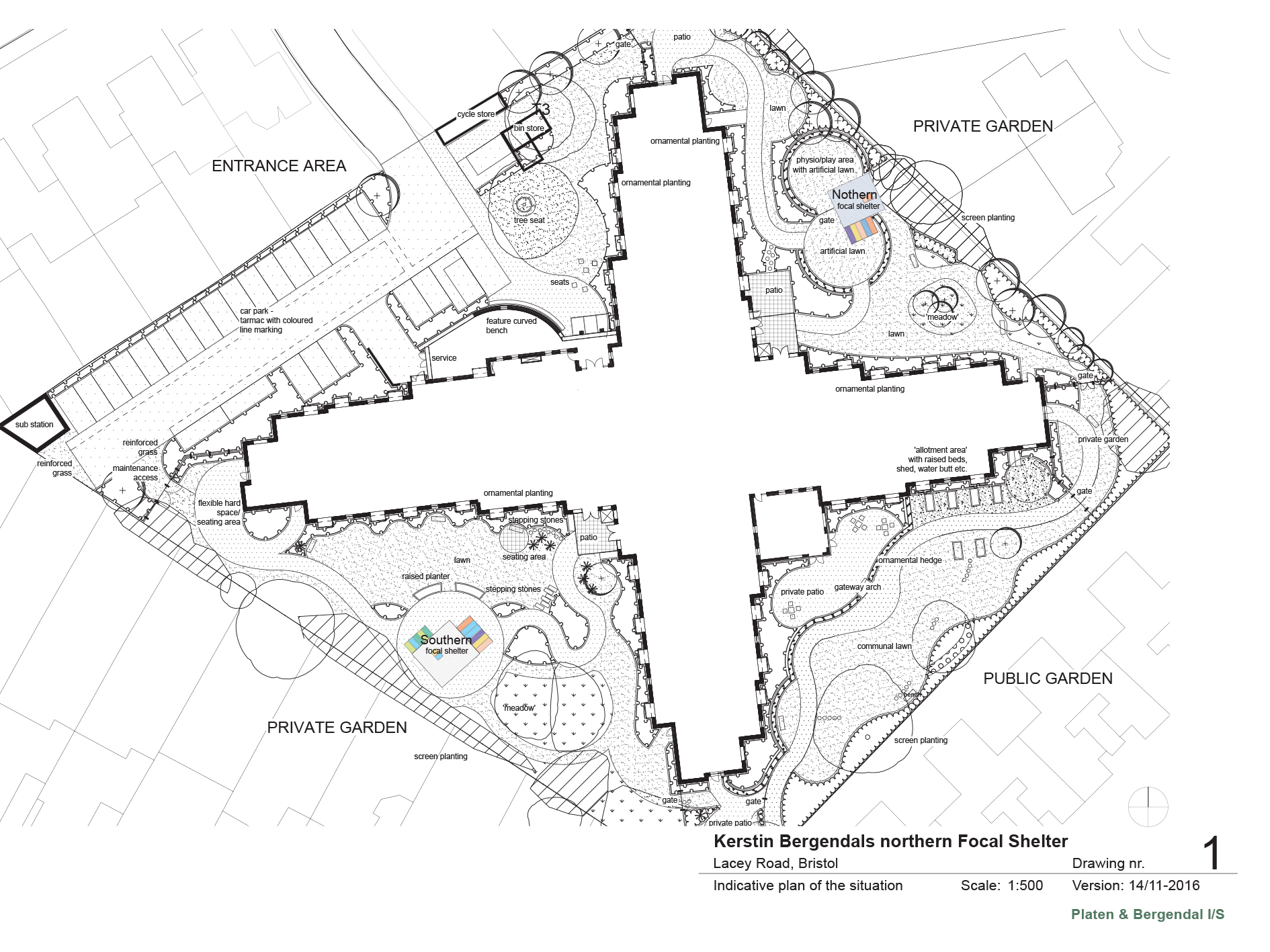
As my point of departure, I proposed a small shift in the optics of what a dementia care-home garden might be. I chose to understand it both as a private sheltered outdoor residence, and as an addition or missing piece in the local fabric. In Greville there are but few parks and gardens for locals to assemble in. The new dementia garden could therefore act as one and if so, could offer to dementia residents a living surface of contact to the wider world. The garden we proposed, thus was shaped as two different zones – one closed residential garden zone, and one semi-open communal garden.
In collaboration with landscape architect Steve Frazer from Enzygo Ldt in Sheffield, I also performed a series of dialogues with different agents involved in, affected by and neighbours to the given site – staff, neighbours, relatives. Their different knowledge and ”lived experience” were intertwined via a process of co-production of an architectural model. This model was presented to the architects and the commissioners, by the end of 2017.
These cross consultation dialogues differed from normal procedures in play when planning dementia care homes. Normally consultations are conducted in separated tracks and with no aim to stage a collaboration across the professional divides.
The indicative drawings, subsequently produced on basis of these consultative dialogues, were presented to the commissioner as an actual landscape program. But they also stand as a prototype of a planning based on an otherwise non-existing consultation process.

A key element in the published proposal is a focal shelter, proposed and adapted specifically for social activities for residents with dementia. Above, you see this shelters placed in circular garden areas on the drawings generated by the dialogues.

The shelters offer a goal for a resident walking in the garden, or a place for the resident who wishes to have something to do. The small architecture also serves a strategic role as a tool, mechanically opening a closer link between the outside of the institution, and the inside. Between the sheltered parts of the garden and new platforms for co-production and co-habitation between the residents and their relatives, their neighbours and local cultural association.
The Danish architect M C Trabut – Jørgensen has elaborated the model you see above.
Here you find the proposal for a new dementia garden elaborated by myself and Steve Frazer in 2017 – Lacey RD garden layout.
This material was published, both as a separate folder entitled A NOW-TIME ZONE/ Four gardens for Greville Dementia Care Home and within the formal building applications from Ashley House and as an architectural model.
However, in 2018, the entire building project was stalled by the Ashley House, and thus also the garden project. But myself and Steve Frazer have keep open a critical discursive dialogue with agents normally engaged in relation to dementia care homes. In summer 2018, we were invited by Dr Christina Buse from the Dep. of Sociology at the University of York to perform a workshop during a public conference entitled “Architectural design and construction for later life care: challenges and opportunities for designing with and for building users” at Kings Manor, University of York, UK, arranged by the Department of Sociology of Wentworth College.
We presented the project with a focus on ways of identifying, supporting and cultivating the concept of local agency and co-ownership, as the basis for a dementia garden layout. The model was displayed, as well as the very rough video sequence mentioned above, to introduce the basic working mode. The Dep. of Sociology published ‘Buildings in the Making’, a research study following the design and construction process on building projects for older people, in particular extra care housing and care homes by doctors Christina Buse, Daryl Martin and Sarah Nettleton from the Department of Sociology of Wentworth College, University of York UK, which includes the art project.
The 18th of September 2018, the project and video was also presented by Steve Frazer and myself within the Fine Art Lecture Series at Academy Valand, University of Gothenburg, Sweden.

A two-sided respons to an invitation from the New Carlsberg Foundation concerning a public artwork for the city of Ikast Brande, in Denmark , 2017-19
An invitation was extended in 2017 to three artists – Cai Ulrich von Platen, Jørgen Carlo Larsen and myself – each asked to elaborate additions to a complex building, the new Cultural House of Ikast-Brande, Hjertet/ The Heart, designed by architects C F Møller (DK). From 1991 – 2005, we constituted the core of an artist run platform, called TAPKO, pioneering site specific art in Denmark by realizing more than 20 exhibitions in in-and outside of the exhibitionary complex, including works of participating colleagues from Denmark and abroad.
Thus, as a point of departure, the invitation was linked to TAPKO and to site-specificity, and as a consequence to the town in which the Cultural House was built – Ikast. This is a minor town in the region of Jutland, famous for its booming textile industry during the 1900s. This boom grew in harsh competition with a similar boom in the neighbor town, Herning – hence the title of the project.
One work – Two versions
The work consists of two versions of the same content – a selection of recorded enquiries among locals and local agents of the town of Ikast. From these dialogues, I chose 176 quotes, and subsequently used them twice in different ways:
As parts of a physical artwork on site:
Individual and subjective quotes from the taped dialogues were anonymized, and adapted to be engraved 4-6 mm deep into the slabs both of the indoor and outdoor “floor” of the new Cultural House. Indoors, the black ceramic tiles are rectangular. On the outside, the large white slabs, chosen by the architects, are five-cornered and irregular, in order to make up a complex pattern. Each quote was adapted, to fit the format of a chosen slab. By then also giving each quote a specific font and font size, it acts a singular “voice” and when grouped, a sort of dialogue or a poetic meaning through association, can be generated between the different statements.
The176 text fragments now appear on site, as a stream of subtle and varied sum of “voices”, spread irregularly over the entire surface of the large new square and meandering in through the interior of the imposing building. As they pronounce informative, dry, odd, funny and melancholic opinions on life in the town of Ikast, they mechanically incite visitors / inhabitants to self-reflective dialogues. Through this process, the semi-private square can over time be reclaimed as a commons, open to a local publicness.
The subtle nature of the engravings adds an ever changeable aspect of the work; In mid-day sunshine, concrete goes light and dry. The texts then almost disappear. On a rainy day, the text in the concrete becomes evident and black. On windy days, most of the fragments are covered or filled by sand, trash or leaves. Indoors, the text fragments are placed right in the middle of areas used for activities. They will gradually be erased and traces of life are gradually added on – rust spots, wine spots, chewing gum and car tracks – all of which gradually will transform the floor of the square to a Book of Life.
As an app:
In order for visitors on site to identify the individual and subjective quotes, I have had created an app, which includes a GPS function. For the visitor at home, the quotes are also listed alphabetically. Clicking on a quote, connects you to a short poetic text by the artist and an image connected to its meaning. These texts ponder upon the essence of the quote in question, and/ or relates it to historical events of the local area, going back as far as 10 000 years. This part of the project is elaborated in collaboration with professionals at the Textile Museum of Herning, local archives of the region and the local paper Herning Folkeblad.
A short video about the project can be seen here.
A pdf showing app content for the entire 176 quotes here.
In 2018, I participated in a series of urban interventions entitled Artwork Ongoing, commissioned by Art Inside Out in Halland, Sweden.
The project was initiated through an invitation to 20 professionals, each with their role in and relation to a redevelopment of a central square in Halmstad – Österskans. I invited them to meet and collectively to recap the process, and consider what led to what?
By in addition inviting the film maker Kristina Meiton to document the process of reflection and my own mode of enquiry, I also aim to initiate a proces of reflection regarding my own role as an artist, in such an enquiry.


Where are you heading?/ Hvor går din sti hen?
During an exhibition entitled Voyage Out at the public gallery Munkeruphus in Denmark in 2015, this straight forward question appeared already on the back wall of the entrance. The public was in addition presented with a pen and paper and invited to add their respons to a designated wall. This wall had the features of the classical low tech message board, from before the days of Facebook.

Message boards have always attracted my attention. There is something about the different styles of writing, concerns and objects shifting owner. In particular I am drawn to the variety of styles of handwriting – and what they convey about the person writing. Handwriting is a parallel to image, or sound.
The process was initiated with a few first notes, produced in relation to the opening. Subsequently it was gradually filled with handwritten letters produced during the course of the exhibition.
The letters responded in many different ways to the question. Some on a low key practical level, informing us concretely about where the responder de facto was heading after visiting the gallery, and for instance about what to buy for dinner. Others respond more to the existential aspect of the question – offering thoughts about the stage in life they were in, the perspectives and dilemmas within what layed ahead of them. As an entity the collection of letters indirectly produce an image of the local, and of the life lead here, during two months in 2015.


This project responded to an invitation from Viborg Kunsthal in 2009, and was performed in collaboration with Rikke Johansen Smith, from Viborg Museum, from 2010 – 2013.
The emblematic history of Viborg was challenged, by the combined use of a durational strategy, and the logic of pure chance. Twenty randomly chosen participants opened their homes for me to document. Each also gave me randomly chosen parts of their subjective history. I documented both on 1200 photos, and on twenty elven minute long video films.
As an entity, these fragments of homes and subjective histories suggest a different history of the small merchant town, than the one told at the museum.
Today it is also an integrated part of the museums collection. The National Arts Council in Denmark in 2011, and the Carlsberg Foundation in 2012 supported the project.
(For detailed information, please scroll down) Photo; Kerstin Bergendal
Gerdas badeværelse, Tyve Dage in Viborg- En rejse, Viborg Kunsthal 2013.





Each year, Malmö City stages a two weeks outdoor culture festival. In 1996, I was invited to participate with a temporary outdoor sculpture, wich was to be added to a street corner of Södra Förstadsgatan.
This was the corner of a short street in between one of the most central merchant streets in the city, and an anonymous crossing. There was a post office, a tobacconist, a furniture upholsterer and an ice cream manufacturer, located in the building just beside the corner.
I chose not to add a work of art to the corner, but rather to add my own activity as a practising artist, during the entity of the exhibition.
Photo: Cai Ulrich von Platen




From the exhibition appropriated as a negotiation space. All photos by Torben Eskerod.
match-stick-car-liquorice-shoe-lace was a response to an invitation from the Museum of Public Art in Køge / KØS to propose a possible reorganizations of a specific spot in the close vicinity of the museum, located in the urban centre of the small conservative merchant city Køge. This passage and the small place close by in front of the museum was however the subject of a slow on-going conflict of interest between the museum and its neighbours.
I appointed myself as a mediating part and the museum space as a kind of transitional zone, and invited all interested parties in relation to this conflict, one by one, to present their point of view to me. The process took 8 weeks and was performed in autumn 2004 in collaboration with landscape architect Jonas m Schül. The final outcome was not a consensus, but an identified model of compromise, accepted by all participants. In the end, however, the proposal was never realised by the municipality. ( for further info, please scroll down)
All photo : Torben Eskerod.








In 2011, a new temporary public space was inaugurated on a future building-site of Trekroner, a new urban area of Roskilde in Denmark.
It was the result of a multilayered public dialogue proces, performed within an art project but defined, built and administrated by locals. It was organized to be many things and serve many purposes by flexing its identity between being bmx-track, physical excercise area, place for birdwatching, concerts space, site for evening fire, an outdoor cinema stage or outdoor party place. Thus, it propoed a vague architecture as public domain– a crossbreed between different purposes, identities and partnerships.
Two processes of local dialogue led to the realisation of this new commons. Both were realised as a part of my eleven year long art project entitled Trekroner Art Plan Project, a commission by Roskilde City. But the commons is indeed the result of a amazing collaboration between me, Marianne Levinsen, Jøren Carlo Larsen, Karen Atwell from Roskilde municipality, with journalist and resident Jakob Fälling, Trekronerrådet and a large group of new residents of the urban area who subsequently bioth built and administrated the commons .
Threee towers in steel and acrylic glass were added by me, and built by S Asbjørn Albertsen. This production was funded by the National Danish Foundation of Art In Public Space in 2010.
Born as a temporary structure, this site was demounted in 2018. The commons as it stood until 2018, a central self governed zone between the rational suburban settlements.
During a weekend in 2008, I initiated OPEN PLAN – collective imagining /Åben Plan – Drømmeværksted.
Participating residents of a new urban area were invited to define the physical program around a new lake, central to the master plan of the new urban development. I posed a question: What would like to share, or do together? What do you wish to share with each other?
Residents responded by producing classical imagery of how the lake area could be organised. Weeks later, their proposals were laid forward for a local public voting prcedure and a few favorites were identified. These were inserted by me into a new map of the area, elaborated in collaboration with landscape architect Marianne Levinsen . In this map, the chosen proposals were placed strategically, as reasons for principal alterations of the actual master plan for the entire new urban area.
The new plan was subsequently published in a large poster, distributed as an addition to the local paper, and subsequently put forward for approval to the municipality of Roskilde. It was approved in late 2010, and the lake area was re-organized in accordance to this plan.

The second public dialogue was initiated by the participants, in relation to the publication of this counterplan.This publication was not edited by me. It was co-edited by residents and the artist/graphic designer Åse Eg and during their work, the roles of artist and participants changed:
Participants enquired if they could shape the poster, as an invitation for all residents to participate in a public walk within the area? And if they could perform this walk as an old fashioned treasure hunt? I naturally responded positively. But what I did not know, was that the treasurehunt partly was a cover-up for the “pirate-planting” of 80 trees on places, where residents felt trees were missing.
This action once completed, residents took yet another initiative: Not wanting to wait for the city to arrange their public shared platform for them, the group of participating residents proposed to go out and physically claim the land they needed to build a joint platform. Their chosen format for a collective platform was a new BMX track. They wished to build it themselves and insisted on sqwuatting the most expensive building lot within the new urban area – as a way of expressing how the planning was in error. This particular lot of land ought to belong to all, and become an open park.
I supported and co-facilitated their action and plan. The first act of collectively terriotializing the land was performed in 2009 .
On behalf of the residents I then negotiated their access to their choice of place, with Roskilde City. I also contributed by expanding the congregation of participants, thus expanding their concept that the track. It would subsequently be perceived not only as a track, but as a flexible multipurpose structure.

The group of participants obtained a temporary permission to mount the track in 2010. It was collectively built by residents themselves – with heavy machines and during a very long hot summer. To this track, I added a structure: A small circle of red tennis gravel, placed in one of the folds of the track. To it, I added three high towers made of galvanized steel and transparent coloured acrylic glass. I also added electricity, to open for the towers to act lanterns in the night.
Additions were also made by other players: The local housing association, Trekronerrådet added a fireplace, a stage and two large containers to the site, making it possible for the locals to use the area for events and parties. Someone else brought loads of low seats, found at a recycling site and to be used around a fireplace. Yet someone else brought a stove to make pancakes – etc. etc With these additions, the track grew into a glitch in the relatively fixed logic of the rational function, at play in the surrounding suburban settlements.

The new commons was organized as home track for a local BMX–association, but also as a point of departure for a free running path around the entity of the lake area, a place for bird watching, for social gatherings around the fire, for flee markets, hang out parties, music evenings, exercise field for elderly and playground for small children etc. etc.


Making Trekroner New Commons in collaboration with the locals, made me aware of how rarely the experiences and the ownership brought in by new residents into a new urban area – at all is considered important in planning.
On the contrary, it seems that planning builds on a standardized image of the residents as unified customers, in order to simplify budget for and production of buildings and spaces.
But if time and space was reserved from the start of an urban development, if the aim was not to entirely define and finish all aspects and all areas of the new urban area – the skills of the new residents in the planning of their area perhaps could elaborate quite different forms of public space. Thereby giving to a new urban area, what contemporary planning not seems to be able to produce – a true sense of place.

In 2018 the twoers and the self goverened place was demounted – but not closed. It was carefully moved into other locations, maintaining this surface of contact between the residents. The towers, however, were demolished in accordance with their intent, to be temporary indicators of an open possibility.

A public commission from Ballerup city;
Attached to the school of Østerhøj in Ballerup, (DK), there is a large solitary playground., which I was invited to reorganize in accordance with the ideas of children of the area. The new playground, developped through a listening proces in several stages, is based on the logic of a specific childrens game.
In this game – ”The Earth is Poisonned” you are chased by someone else, but can not touch the ground while escaping. This gave the basic organisational principles for the new playground. (For full info, please scroll down.)
Realised in 2004 in collaboration with Jonas M Schul from Schul& co, and Danske Legepladser for Ballerup Kunstråd.
In Østerhøj there is a train station and a bus station. But the public domain is reduced to communal roads, walking paths and a local school. All buildings, apart from social housing estates, are private. The play-ground, linked to the school, is located right by an open non-built green area. If organized with this intention, the playground and schoolyard could actually reinstate into the suburban area, what is left out in the initial planning – a common heterotopic ground.
The invitation to me grew out of an incident two years earlier. A group of children from the school had sent a letter to the editor of the local paper. They complained that the playground was already run down and dangerous. The City Council responded by granting them the symbolic sum of 2000 kroners. A group of staff from the municipality heard about this, and were annoyed by the lack of respect. They re-applied for, and obtained funding of a new playground, designed in accordance with the wishes of the children.
I initiated a mapping of criteria for good play. Ninety children were asked to show me how their dream playground would look like. We used sand boxes, scaled as their playground. Some weeks later, I revisited and video-filmed all participating children in groups of 2-4 children at a time. I asked them to further elaborate the thoughts behind their particular proposals. From their responses I gathered list of criteria for a “good playground”.
I later re-presented this list to yet other groups of children from the neighbourhood with whom additional criteria’s were developed.
Jonas Schül and myself finally faithfully translated the list and the models, exhibited by the Museum of Contemporary Art in Køge in 2004, to a model of a new playground and then to a special version of a tendering material. Jonas Schül consequently performed the actual tendering rounds with children participating as full members of a selection committee.
The very organization of the playground contests and contradicts a traditional playground layout, normally based upon a zone-concept similar to that of the planning of new urban areas. In this playground you do not find separate stations for climbing and sliding, for swinging and for digging. Instead a game, called “Earth is poisoned” is the basic concept.
In this game, one is chased by someone else, but forbidden to touch the ground while chasing /escaping. This concept gave three basic organisational principles for the realised playground;
Firstly, one must be able to pass along all the different passages and paths all over the playground, without ever having to touch the ground.
Secondly, all paths must constantly divide in two. The person chasing, must never be able to tell which path you choose. All physical structures are for this reason also perforated, in all sorts of ways, in order for a child’s body to be able quickly to slip through.
Thirdly all in the playground is both integrated, and shaped in such a way, that it stays impossible to translate what they are, into verbal tongue. This secures an on-going re-definition, -which, according to the participating children – is the essence, a temporary, imaginative play. You can always slip out of a dead end, by simply changing the names for all things.
The highest wish of the children however, was in fact that grown-ups also would use the playground for Sunday morning leisure, local parties and picnics.
In their minds, a division of spaces between the generations – is a purely stupid idea. For them, a playground of course is not a playground. It is a space for another kind of time and being. For this reason, all what can be imagined as a castle, bench or ramp for skating, is also shaped so it as well can be perceived just as a nice place to sit for a while, and read your paper in the sun.

PARK LEK was an utopian art project as well as a concrete intervention into an urban planning process, performed between 2010 – 2014 and responding to an invitation from Marabouparken Konsthall in Sundbyberg, to create a project with park / park play as its inspiration and point of departure.
Through the use of durational strategies and strategies of play, I gathered a broad range of different people and raised their awarness about a a proposed district plan for densification of two urban areas, Hallonbergen and Ör in Sundbyberg, Sweden.
The art project appeared as a parallell public hearing procedure, and elaborated a different plan in collaboration with particpants. This plan was presented at the public gallery and to the municipality. This alternative plan was approved by the municipality two years later. This meant that the plan of the group of six major developpers in Sweden, was rejected.
The project was a part of Marabouparken Lab and was performed in collaboration with Marie Cathrine Trabut Jørgensen and Peter Schultz Jørgensen,both from Denmark, with financial support from Statens Konstråd and Samverkansprojektet, as well as from Sundbyberg stad. The city architect Karin Milles, and planners Åsa Steeen, Helena Dunberg and Lisa Brattström were collaborators in the realisation.
Photo; PARK LEK
( For a 20 min video /presentation I made at Samtidskonstdagarna in Malmö in 2015, see https://www.youtube.com/watch?v=X0f8efn0aIYSweden : .)

With PARK LEK, I responded to an invitation from Marabouparken Konsthall in Sundbyberg, Sweden, to create a project using park, and in particular park play (ground) as my inspiration and point of departure. The project was initiated as a contribution for the 2010 inaugural exhibition of the public gallery.
In an initial phase of my project PARK LEK (PARK PLAY), I brought together civil servants and politicians from the municipality of Sundbyberg in the art gallery, to reflect on how the city’s parks could function as contact areas for the citizens. ( See above) The discussions here also came to touch on a planned densification of the districts of Hallonbergen and Ör, as concrete examples of how urban development in Sundbyberg slowly is encroaching on parks and green areas.
A full year later, the PARK LEK project entered its second phase. I decided to intervene into this densification, by appearing as an alternative to the planned public consultation procedure. With the support of the Swedish National Council of Art, the municipality of Sundbyberg had accepted my invitation to chart thoughts, ideas and structures, as perceived by the residents and by others with relations to their areas today. My question to each was, how the urban areas look, when seen from their window?
This initated a pure walk and talk phase: I visited individual or groups of locals, administrators, teachers and other professionals with a relation to the two urban areas. Each dialogue was documented on video, and by the end of March 2012; over 43 films were placed on you tube. Above: Ingrid in her window facing the area for densification, in 2010. ( see parklek.com)
These videos opened for an intense local debate about the future of the areas. I received requests of meetings between all participants, to collectively read and re-define the proposed plan.
The discussions were realised as two all-weekend workshops, and led to the elaboration of a different version of a district plan for the future densification.
The PARK LEK-project was presented at a group-exhibition entitled Hembyg(g)d, at Marabouparken in 2012. My fellow artists in the exhibition were Pawel Althamer, Catti Brandelius, Anna Högberg & Johan Tirén, Kateřina Šedá, Anna Witt.

A third and final part of the art project, PARK LEK PARLIAMENT, was realised in collaboration with the City of Sundbyberg, and materialized in an open corner space in Hallonbergen Shopping Centre.
I appropriated this corner by painting it brightly pink. Here, during 18 months, I moderated negotiations, discussions and workshops in full view amid the shopping centre’s other visitors. The aim was to concretize the earlier versions of our proposal, and work out more concrete solutions for the concerns formulated in the initial video films.
In May 2014, the municipal government in Sundbyberg took the principal decision to implement our counter-plan, and to let the new working methods of the PARK LEK project be used in the future planning work within the urban development. In relation to this event, a final and cohesive exhibition of the entity of the project was performed in the shopping mall of Hallonbergen.
From 2015 and on, the municipality is working on the realisation of the plan, and already the alternative areas for new settlements have been implemented, as well as the realisation of the new community house Toppstugan, the new youth centre and the realisation of the so called Green Cross – two urban parks in the area.
PARK LEK is thus both a utopian art project as well as a concrete intervention in the urban planning process.

The second phase of PARK LEK was a walk and talk process, intiated through this question. I visited individual or groups of locals, administrators, guards, teachers, professionals with a relation to the two urban areas . Each dialogue was documented on video. In all 43 films were placed on you tube by the end of May 2012.


At the end of the project, in May 2014, the municipal government in Sundbyberg took the principal decision to implement the counter-plan of the project, and to let the new working methods of the PARK LEK project affect the future planning work with the urban development. PARK LEK is thus a utopian art project as well as a concrete intervention in the urban planning process.






The Memory Box Project
The Memory Box is an integrated part of my Trekroner Art Plan Project from 2001-2011.
It consists of a 1:1 collection of images, intended for a local self-governed digital museum in relation to new urban areas. The collection consists of several undreds of images of all kinds – plans, budgets, texts, photos both historical recordings of the former area and later photos from the new urban area.
Above is the model of the physical museum I hoped to build in the new area. This museum is not yet realized. But the collection was shown at Museum of Contemporary Art in Roskilde, in 2003 with an exhibition entitled Overblik – kunsten og byen der endnu ikke er.
In 2011 I donated this collection to the local residents cultural association – Trekronerrådet.
Photos: Anders Sune Berg, Torben Eskerod and Kerstin Bergendal 2001 – 2011.
I wrote the Trekroner Art Plan in 2001, as a response to a brief from the Danish National Arts Foundation and Roskilde Municipality. In the original brief, the commissioners asked for how contemporary artists could operate within the highly determined planning process? The response was delivered in 2001, and was subsequently realized in major parts through the Trekroner Art Plan Project, which I curated from 2002 – 2011.
The aim of my response and of The Trekroner Art Plan Project, was to facilitate critical discussion between different professions and create possibilities for inserting the unplanned within contemporary urban planning processes, “allowing artistic interventions to be realised within a prescribed environment which simultaneously critiqued the planning process and giving local residents a chance to contribute to their built surroundings”. (From Claire Doherty and Paul O’Neill (ed.) Locating the Producers: Durational Approaches to Public Art, 2011)
As for The Memory Box Project, the physical form I originally imagined was a two tall cylinder-shaped architecture with planted deeply directly into one of the sloping hills of the new urban area.
The roof and veranda formed an informal balcony structure, serving as a viewpoint over the physical area on the outside. The two cylinders were to be approximately 4 meters in diameter, one of which had windows to let in daylight, and were intended for various local exhibitions. The other was to be dark and would contain a digital archive of memories and only furnished with large electronic screens on the walls and on the floor. A visitor would trigger projections of all kinds of stored memories, but in a random combination; Factual information, anecdotes, reproductions of earlier municipal visions, documentation of the visiting artists’ contributions to the area and photos from social gatherings – all mixed in irregular combinations.
The essence of the Memory Box is the conscious use of chance to describe the history of an urban area – that precisely lacks a proper history .The archive is to continuously to be expanded through my own documentation, and through all kinds of documents from local events, details of every day life and of same, etc etc.
The organisation and administration of the Memory Box was to be done jointly by local homeowners, Roskilde Museum and Roskilde University. All of them could contribute to the collection and to a broad spectrum of exhibitions in the little pavilion.
In order to mount an image of what the Memory Box Archive might contain, I presented in 2003 a wide spectrum of “memories from a city that not yet exist” in the exhibition OVERBLIK – Kunsten og den ny by at the Museum of Contemporary Art in Roskilde in 2003.
Below some few examples of images within the collection of the Memory box Project: An interior from a one family home in 2003, a bus tour with myself as a guide 2004, the interior of the new student apartmenets in 2002, a table with all possible documents and plans regarding the area from 1970 until 2003, and finally documentation of my soup debate with municipal planners in 2002.